Logo Piulachs Bellsolell arquitectura
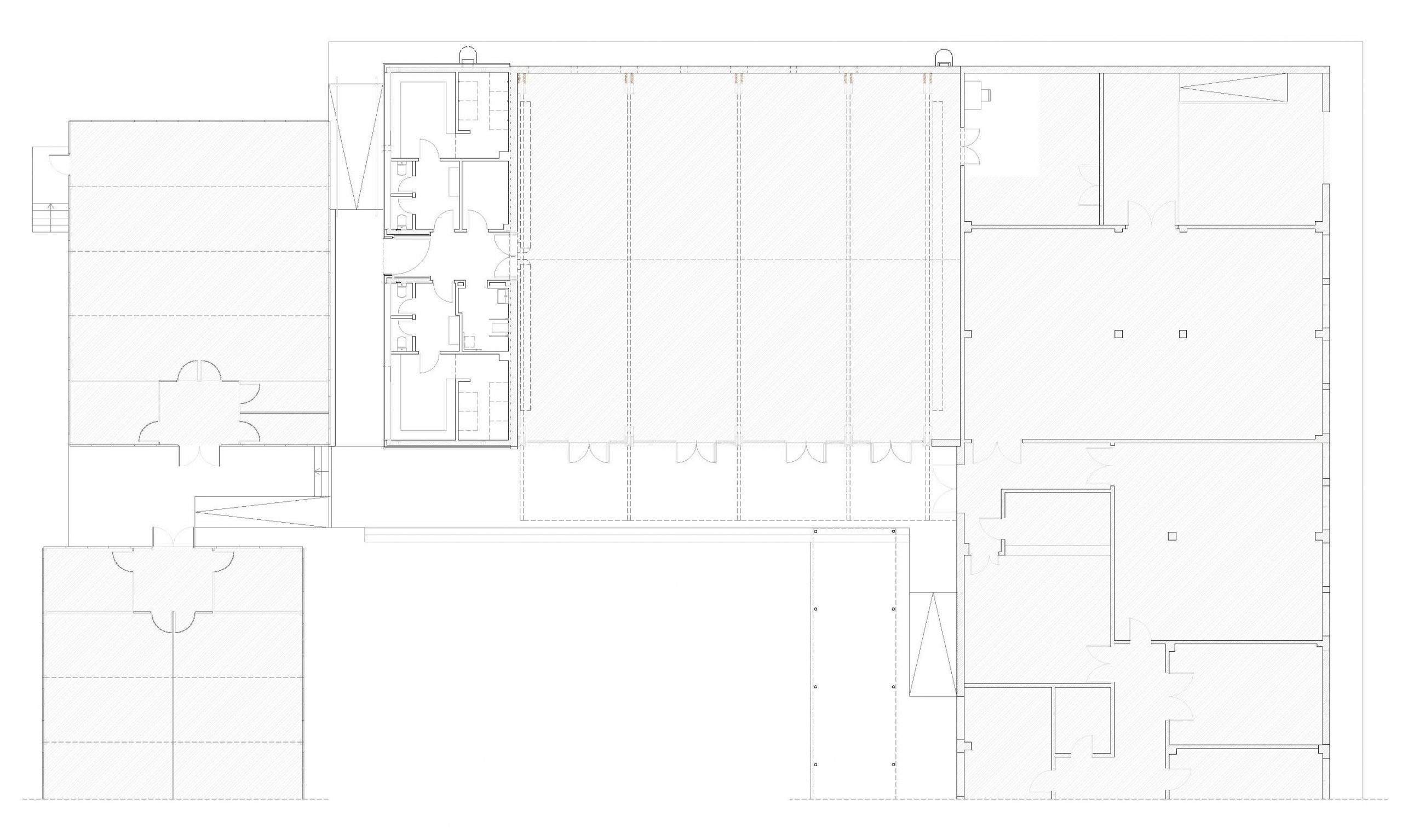
Vestidors Institut Pius Font i Quer
Manresa
promotorDepartament d'Educació Generalitat de Catalunya
superfície85 m2
data2022-2023
categoriaProjecte i Direcció d'Obra
col·laboradors
estructuraCotca
instal·lacionsIngespa
arquit. tècnicaAtimcat 95
Planols Estació de Gràcia
J
!
Logo Piulachs Bellsolell arquitectura
Planols Estació de Gràcia
Vestidors Institut Pius Font i Quer
Manresa
promotorDepartament d'Educació Generalitat de Catalunya
superfície85 m2
data2022-2023
categoriaProjecte i Direcció d'Obra
col·laboradors
estructuraCotca
instal·lacionsIngespa
arquit. tècnicaAtimcat 95
J
!