Logo Piulachs Bellsolell arquitectura
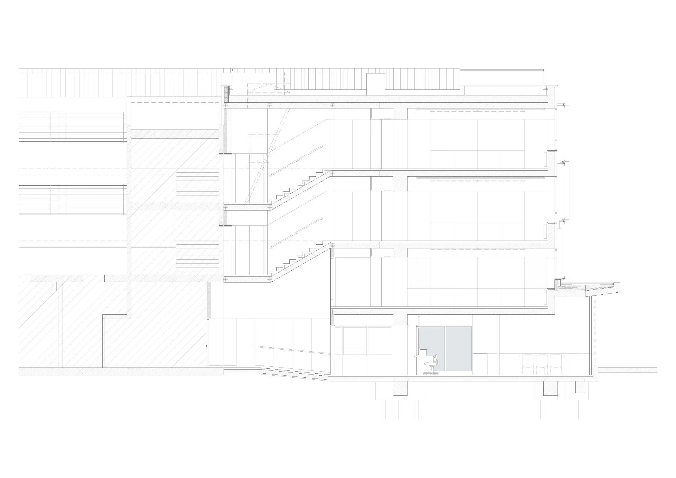
Ampliació IES Bitàcola
Barberà del Vallès
promotorDepartament d'Ensenyament Generalitat de Catalunya
superfície1239 m2
data2017-2021
categoriaProjecte i Direcció d'Obra
col·laboradors
estructuraAngel Obiol Arquitecto
instal·lacionsFont i Armengol, Enginyeria d'instal·lacions
arquit. tècnicaAtimcat 95
Planols Estació de Gràcia
Planols Estació de Gràcia
J
!
Logo Piulachs Bellsolell arquitectura
Planols Estació de Gràcia
Planols Estació de Gràcia
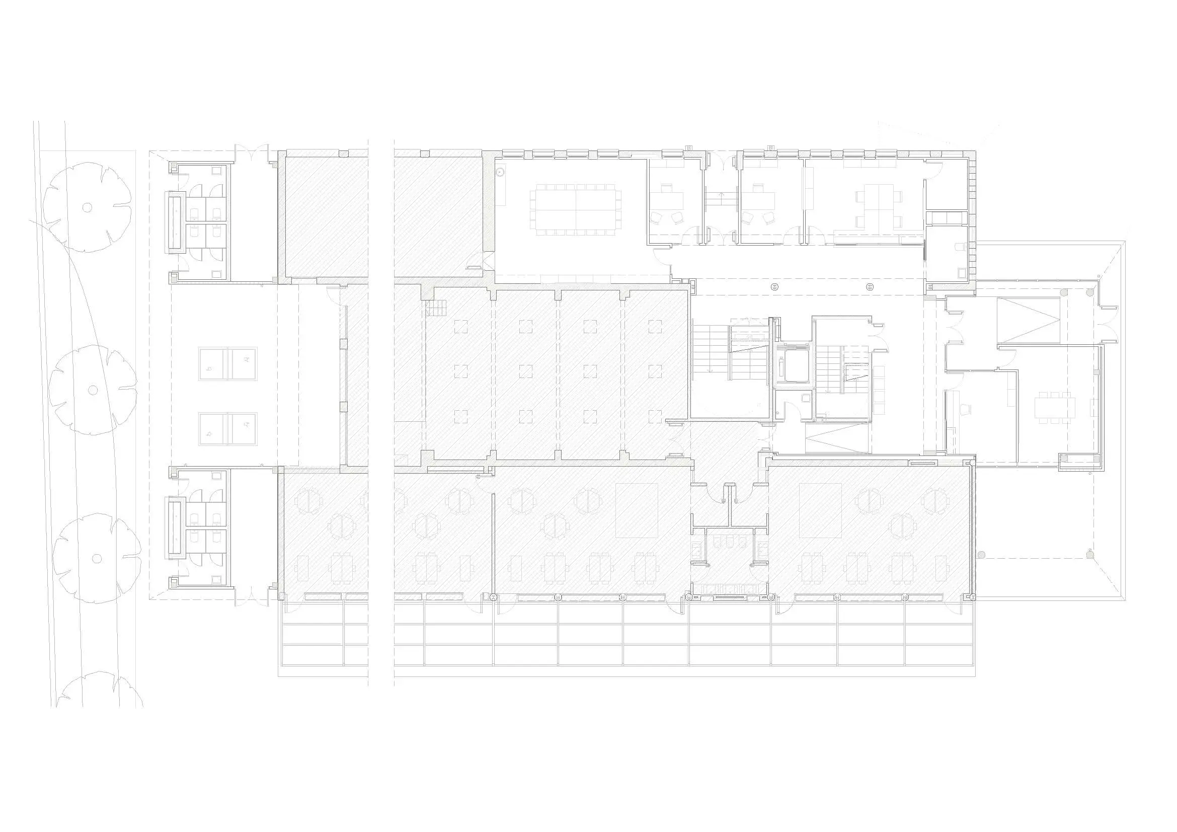
Ampliació IES Bitàcola
Barberà del Vallès
promotorDepartament d'Ensenyament Generalitat de Catalunya
superfície1239 m2
data2017-2021
categoriaProjecte i Direcció d'Obra
col·laboradors
estructuraAngel Obiol Arquitecto
instal·lacionsFont i Armengol, Enginyeria d'instal·lacions
arquit. tècnicaAtimcat 95
J
!