Logo Piulachs Bellsolell arquitectura
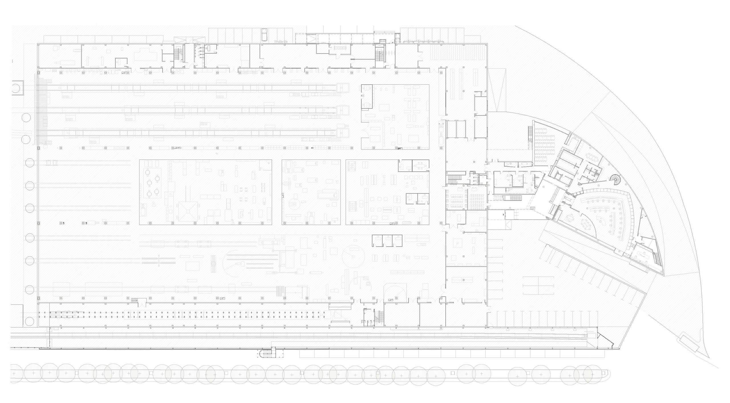
Reforma al Centre d’Operacions Rubí FGC
Oficines i dependències

Rubí, Barcelona
promotorFerrocarrils de la Generalitat de Catalunya
superfície606 m2
data2021-2022
categoriaProjecte
col·laboradors
estructuraAngel Obiol Arquitecto
instal·lacionsActive Engineering Solutions
arquit. tècnicaAtimcat 95
fotografiaPau Fabregat
J
!
Logo Piulachs Bellsolell arquitectura
Reforma al Centre d’Operacions Rubí FGC
Oficines i dependències

Rubí, Barcelona
promotorFerrocarrils de la Generalitat de Catalunya
superfície606 m2
data2021-2022
categoriaProjecte
col·laboradors
estructuraAngel Obiol Arquitecto
instal·lacionsActive Engineering Solutions
arquit. tècnicaAtimcat 95
fotografiaPau Fabregat
J
!