Logo Piulachs Bellsolell arquitectura
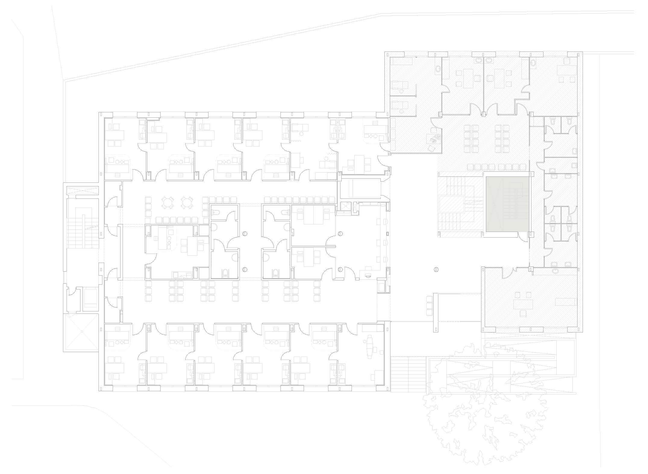
Reforma al CAP Bon Pastor
Barcelona
promotorCatSalut
superfície1748 m2
data2016-2018
categoriaProjecte i Direcció d'Obra
col·laboradors
instal·lacionsProisotec Enginyeria
arquit. tècnicaAtimcat 95
Planols Estació de Gràcia
J
!
Logo Piulachs Bellsolell arquitectura
Planols Estació de Gràcia
Reforma al CAP Bon Pastor
Barcelona
promotorCatSalut
superfície1748 m2
data2016-2018
categoriaProjecte i Direcció d'Obra
col·laboradors
instal·lacionsProisotec Enginyeria
arquit. tècnicaAtimcat 95
J
!