Logo Piulachs Bellsolell arquitectura
Rehabilitació de nau industrial
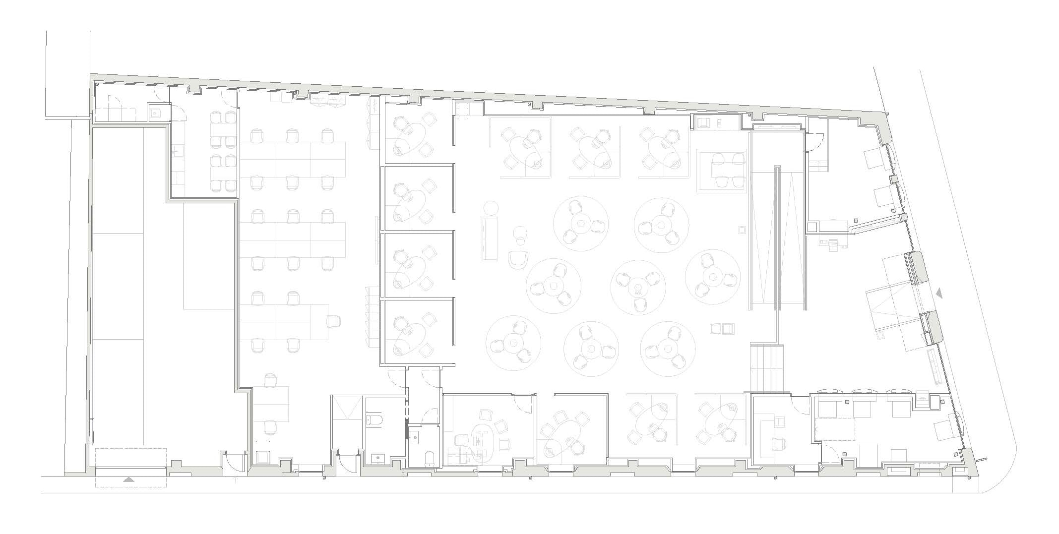
Oficina CaixaBank

Palafrugell, Girona
promotorCaixaBank
superfície721 m2
data2019
categoriaProjecte i Direcció d'Obra
col·laboradors
instal·lacionsICA-Grupo
arquit. tècnicaAtimcat 95
Planols Estació de Gràcia
J
!
Logo Piulachs Bellsolell arquitectura
Planols Estació de Gràcia
Rehabilitació de nau industrial
Oficina CaixaBank

Palafrugell, Girona
promotorCaixaBank
superfície721 m2
data2019
categoriaProjecte i Direcció d'Obra
col·laboradors
instal·lacionsICA-Grupo
arquit. tècnicaAtimcat 95
J
!