Logo Piulachs Bellsolell architecture
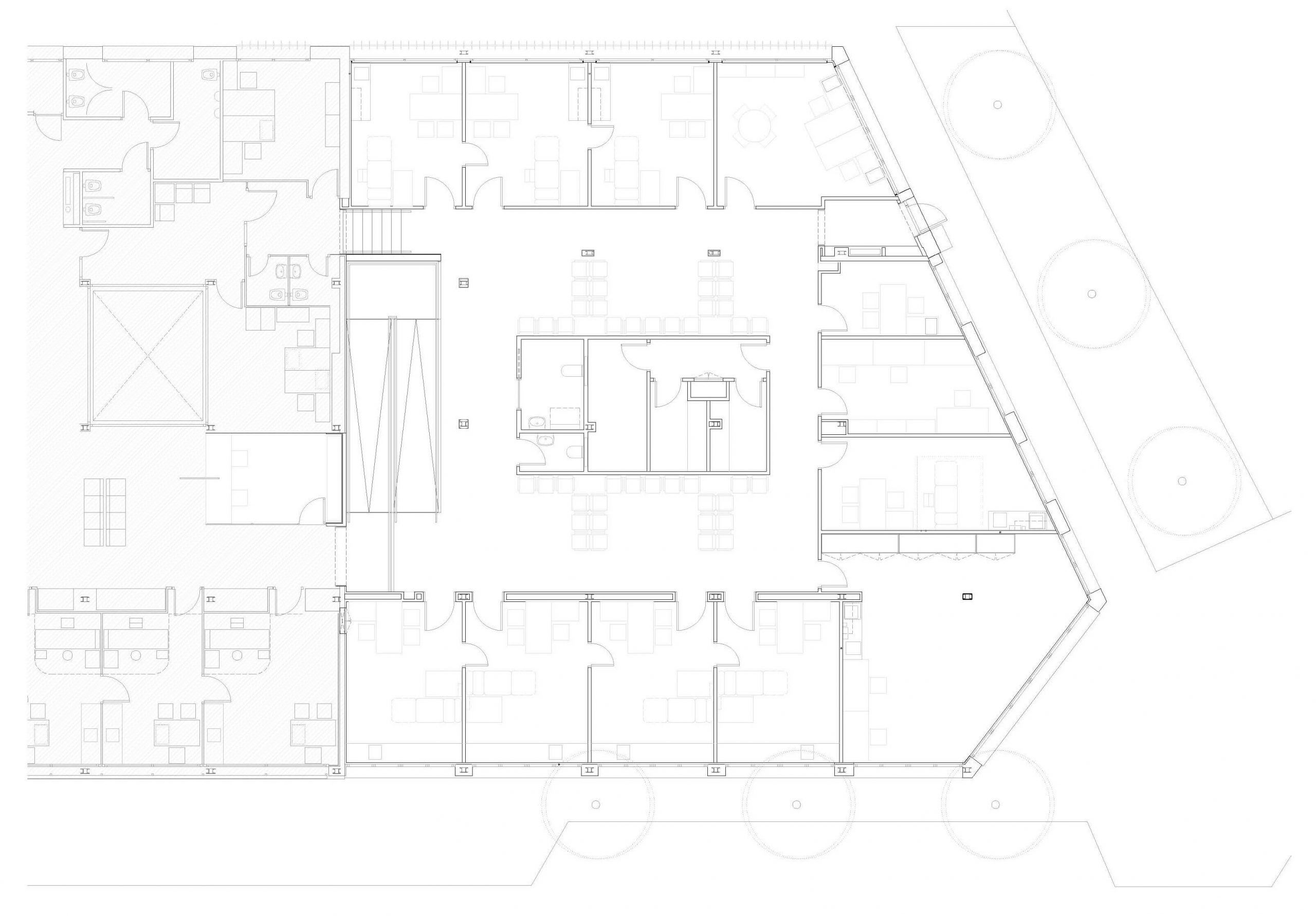
Renovation at CAP Can Pantiquet
New ASSIR center

Mollet del Valles
promoterCatalan Institute of Health
surface453 m2
date2020-2022
categoryProject and Construction Management
collaborators
facilitiesProisotec Engineering
technical architectAtimcat 95
J
!
Logo Piulachs Bellsolell architecture
Renovation at CAP Can Pantiquet
New ASSIR center

Mollet del Valles
promoterCatalan Institute of Health
surface453 m2
date2020-2022
categoryProject and Construction Management
collaborators
facilitiesProisotec Engineering
technical architectAtimcat 95
J
!